La Quinta

Te koop Herenhuis Costa Del Sol La Quinta € 695.000,-

Ref.no: RSOR5316862
Price: € 695.000,-

1-7980e48d732b6fc85c14b43b94d2aa54.jpg

Te koop Herenhuis Costa Del Sol La Quinta € 695.000,-

Bedrooms3
Salles de bains2
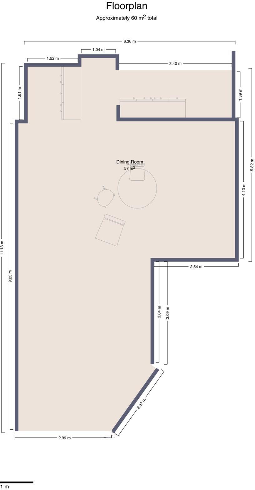
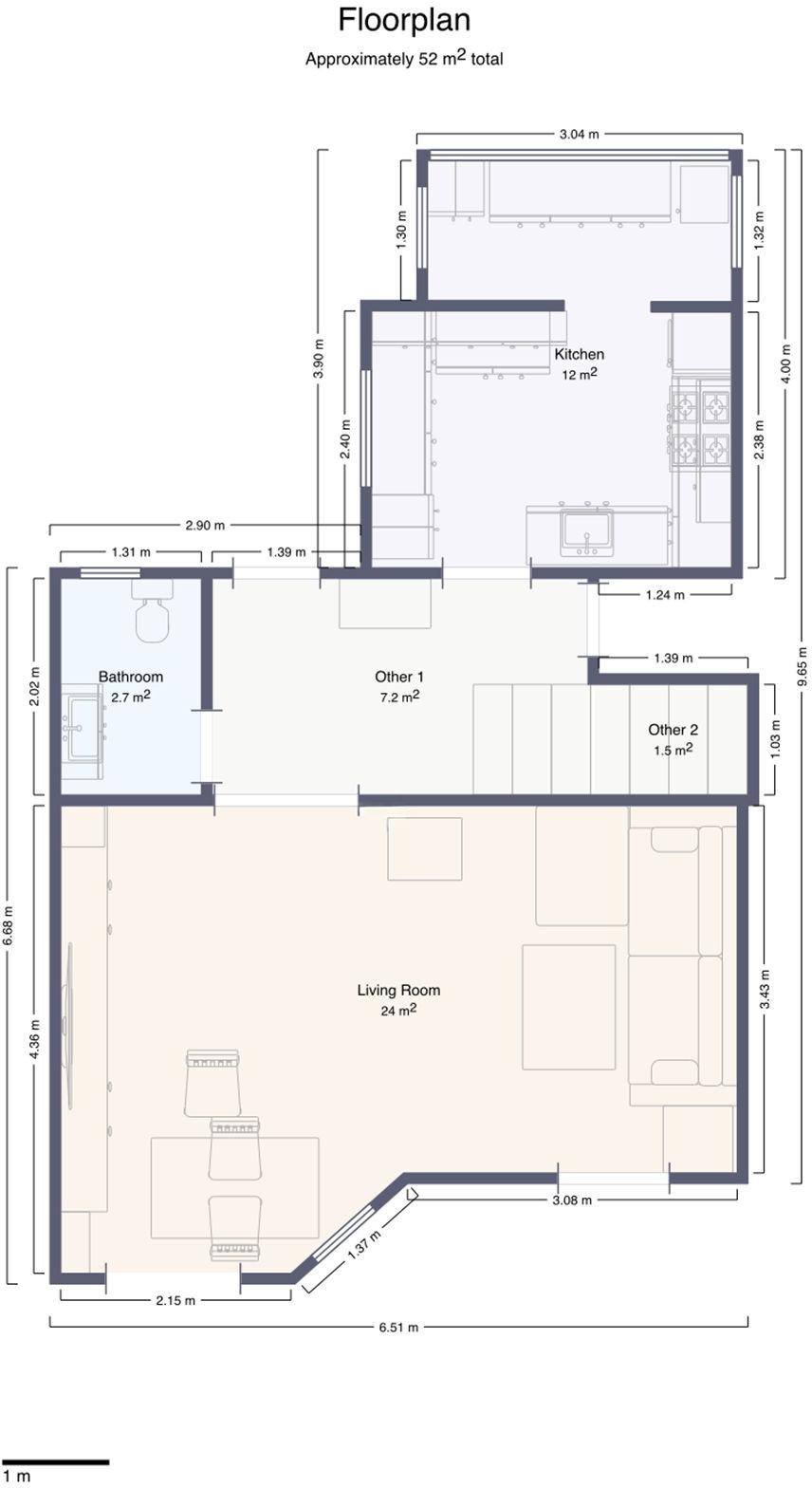
Living area112m²
Poolyes
Gardenyes
Parkingyes
Built year1994
Setting: Frontline Golf, Urbanisation
Orientation: South West
Condition: Excellent
Pool: Communal
Climate Control: Air Conditioning, Pre Installed A/C, Hot A/C, Cold A/C
Views: Golf, Garden
Features: Covered Terrace, Fitted Wardrobes, Private Terrace, Solarium, Ensuite Bathroom, Marble Flooring, Double Glazing, Fiber Optic
Furniture: Optional
Kitchen: Fully Fitted
Garden: Communal
Security: Gated Complex, Electric Blinds
Parking: Communal, Private
Utilities: Electricity, Drinkable Water, Telephone
Category: Golf, Holiday Homes, Investment, Resale
Ref.no: RSOR5316862
Price: € 695.000,-

Plus d'information ›››
Te koop Herenhuis Costa Del Sol La Quinta € 695.000,-

Elegant Garden Townhouse with Rooftop Terrace | La Quinta, Benahavís

Absolutely beautiful and exceptionally well cared for, this three-bedroom townhouse is set within one of the most sought-after private communities in La Quinta, offering space, privacy, and a relaxed Mediterranean lifestyle in a secure and established setting. Lovingly maintained by the current owners for over twenty years, the home presents an impressively generous interior complemented by expansive west-facing terraces and the exclusive use of a large, sun-drenched private garden. The outdoor spaces are a true highlight, perfect for afternoon sun, entertaining, or simply unwinding in complete tranquillity. Above, an expansive rooftop terrace captures open views across the surrounding landscape, the mountains, and La Quinta Golf, creating a spectacular setting for evening dining or sunset drinks.

Inside, the property combines comfort with quality. A fully reformed German-designed kitchen with integrated appliances sits at the heart of the home, complemented by a separate utility room fitted to the same high standard, delivering both practicality and clean contemporary design suited to modern living. The overall layout feels spacious, bright, and welcoming, ideal as a full-time residence or refined holiday home. Set within a secure and highly regarded gated community, the location is superb. A short walk of approximately ten minutes brings you to a five-star hotel, golf clubhouse, spa, restaurant, and café, while the wider amenities of Benahavís, Nueva Andalucía, and Marbella are all within easy reach.

Partially refurbished, offered fully furnished, and presented in excellent condition throughout, this is quite literally a turnkey home, ready for immediate enjoyment from day one.

Contact us today to arrange your private viewing.

Alternatives

BOHACP1364_4240_V1_55FE.jpg

Te koop Herenhuis Costa Del Sol Estepona € 730.000,-

Price € 730.000,-
Plus d'information
BOHACP1374_4316_V1_45E1.jpg

Te koop Herenhuis Costa Del Sol Fuengirola € 645.000,-

Price € 645.000,-
Plus d'information
BOHAAP4770_24773_V1_CA53.jpg

Te koop Herenhuis Costa Del Sol La Cala De Mijas € 753.000,-

Price € 753.000,-
Plus d'information
BOHACP1351_4121_V1_A088.jpg

Te koop Herenhuis Costa Del Sol La Cala De Mijas € 675.000,-

Price € 675.000,-
Plus d'information
Disclaimer | Links
Casadelmar %lng_cookie_notice% %lng_close%
x