Nueva Andalucía

Te koop Herenhuis Costa Del Sol Nueva Andalucía € 530.000,-

Ref.no: RSOR5321449
Price: € 530.000,-

1-7980e48d732b6fc85c14b43b94d2aa54.jpg

Te koop Herenhuis Costa Del Sol Nueva Andalucía € 530.000,-

Bedrooms4
Salles de bains4
Living area159m²
Poolyes
Gardenyes
Parkingno
Built year1984
Setting: Close To Golf, Close To Shops, Close To Town, Close To Schools, Urbanisation
Orientation: East, South, West
Condition: Fair, Restoration Required
Pool: Communal, Private
Climate Control: Air Conditioning
Views: Urban
Features: Fitted Wardrobes, Near Transport, Private Terrace, Ensuite Bathroom, Marble Flooring, Fiber Optic
Furniture: Optional
Kitchen: Fully Fitted
Garden: Communal
Utilities: Electricity, Drinkable Water
Ref.no: RSOR5321449
Price: € 530.000,-

Plus d'information ›››
Te koop Herenhuis Costa Del Sol Nueva Andalucía € 530.000,-

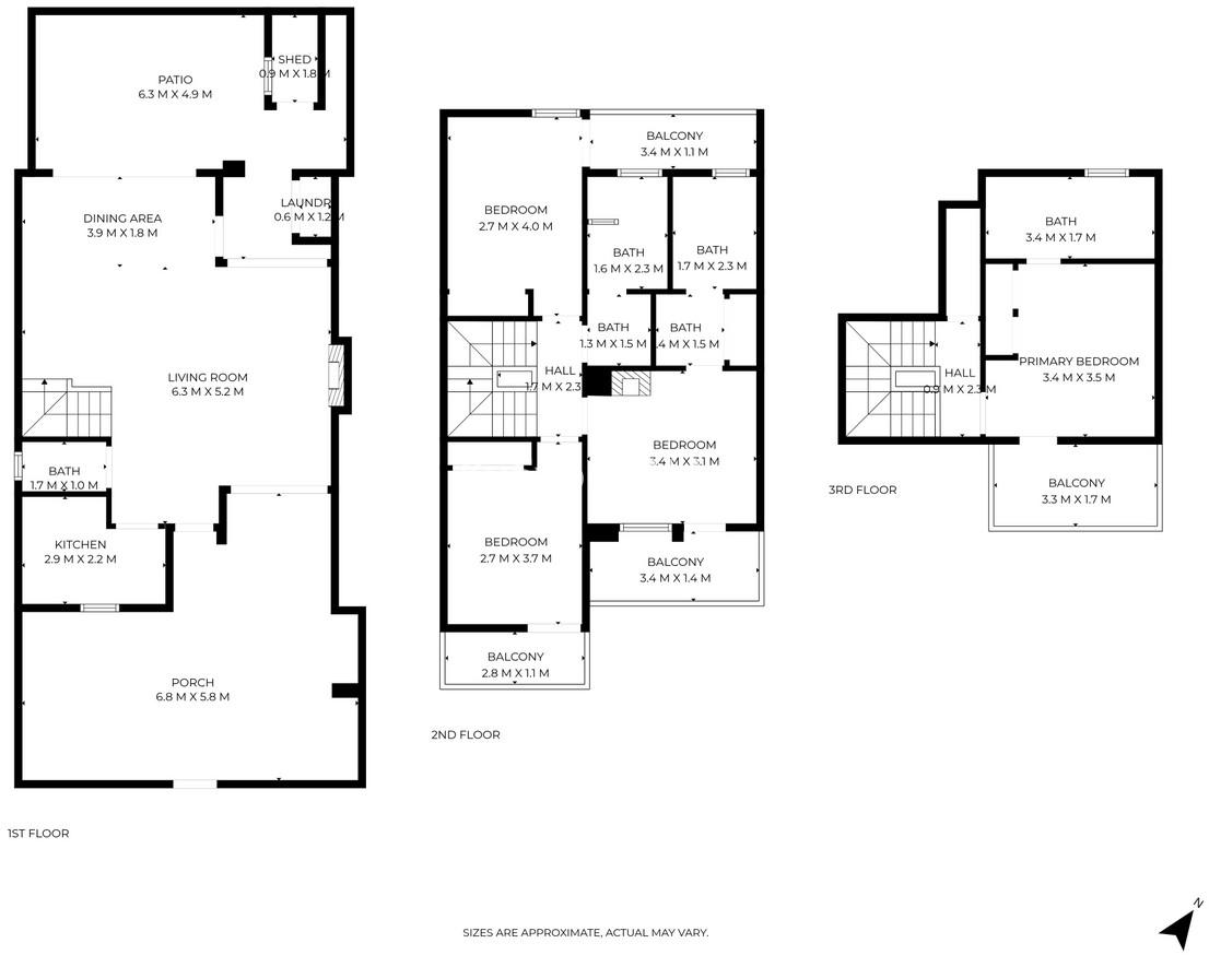
Semi-Detached Villa in a Gated Community with Swimming Pool in Nueva Andalucía

An excellent opportunity to acquire a magnificent corner semi-detached villa located within a gated community with communal swimming pools, set in one of the most sought-after areas of the Costa del Sol. The resort enjoys direct access to the main road and is just minutes away from Nueva Andalucía, Puerto Banús, beaches, golf courses, and all amenities.

The South-East facing property is distributed over three levels: On the main floor, the entrance is through a spacious front terrace of 40 sqm, ideal as a relaxation area. It boasts a bright living room, guest toilet, independent kitchen, and access to a pleasant rear terrace of 18 sqm. The first floor comprises three bedrooms and two bathrooms, one of which is en-suite. All rooms access an independent terraces. The top floor features a fourth bedroom with terrace and a full bathroom.

All bedrooms have direct access to a terrace, providing abundant natural light and an excellent indoor-outdoor connection.

Alternatives

1-7980e48d732b6fc85c14b43b94d2aa54.jpg

Te koop Herenhuis Costa Del Sol Riviera Del Sol € 549.000,-

Price € 549.000,-
Plus d'information
1-7980e48d732b6fc85c14b43b94d2aa54.jpg

Te koop Herenhuis Costa Del Sol La Cala Golf € 559.000,-

Price € 559.000,-
Plus d'information
1-7980e48d732b6fc85c14b43b94d2aa54.jpg

Te koop Herenhuis Costa Del Sol Estepona € 555.000,-

Price € 555.000,-
Plus d'information
1-7980e48d732b6fc85c14b43b94d2aa54.jpg

Te koop Herenhuis Costa Del Sol La Cala Golf € 524.999,-

Price € 524.999,-
Plus d'information
Disclaimer | Links
Casadelmar %lng_cookie_notice% %lng_close%
x