Riogordo

Te koop Herenhuis Costa Del Sol Riogordo € 295.000,-

Ref.no: RSOR5298295
Price: € 295.000,-

1-7980e48d732b6fc85c14b43b94d2aa54.jpg

Te koop Herenhuis Costa Del Sol Riogordo € 295.000,-

Bedrooms9
Salles de bains5
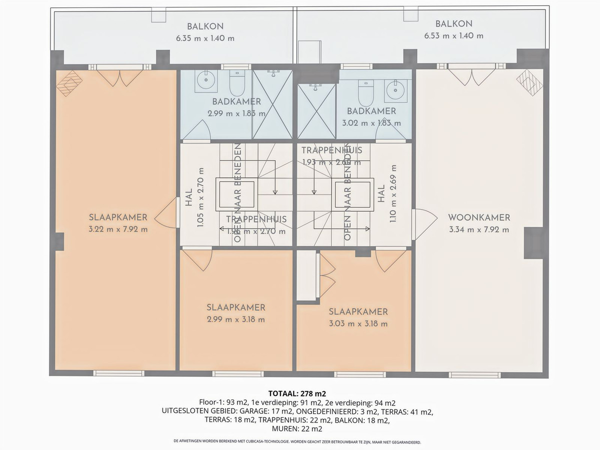
Living area381m²
Poolno
Gardenyes
Parkingyes
Built year2005
Setting: Village, Mountain Pueblo, Close To Town, Close To Schools
Orientation: South West
Condition: Good
Pool: Room For Pool
Climate Control: Air Conditioning
Views: Courtyard, Urban
Features: Private Terrace, WiFi, Storage Room, Ensuite Bathroom, Near Church
Furniture: Not Furnished
Kitchen: Partially Fitted
Garden: Private
Parking: Garage, Street
Utilities: Electricity, Drinkable Water
Category: Bargain, Investment, Resale
Ref.no: RSOR5298295
Price: € 295.000,-

Plus d'information ›››
Te koop Herenhuis Costa Del Sol Riogordo € 295.000,-

We are pleased to present this unique investment opportunity in the heart of Riogordo (Málaga): a substantial village house with a total built area of 381 m², distributed over three floors on a 323 m² urban residential plot. Constructed in 2005 and legally registered as a single property with no horizontal division, the building offers exceptional flexibility for redevelopment or reconfiguration. Structurally sound and attractively priced for its size and location, it is ideal for a full renovation to unlock its true potential. Multiple development options are possible, including retaining the current layout as two large homes with private outdoor spaces, converting the ground floor into a commercial unit, office, or co-working space for additional rental income, or creating two modern duplex apartments with private terraces suitable for long-term or holiday rentals. The first floor also allows for the creation of generous terraces connected to a communal garden at the rear, offering a rare outdoor oasis in the village centre. Strategically located just 35 minutes from Málaga city and 30 minutes from the coast at Torre del Mar, Riogordo is becoming increasingly attractive as demand grows for more affordable village living within commuting distance of the city. Photos include layout proposals and design concepts, while the accompanying video provides a 3D walkthrough of the current structure. All legal and cadastral documentation is in order, ensuring clarity and ease for future development. For further information, detailed floor plans, or to discuss renovation ideas and investment potential, please get in touch.

Alternatives

1-7980e48d732b6fc85c14b43b94d2aa54.jpg

Te koop Duplexwoning Costa Del Sol Doña Julia € 330.000,-

Price € 330.000,-
Plus d'information
1-7980e48d732b6fc85c14b43b94d2aa54.jpg

Te koop Herenhuis Costa Del Sol Istán € 279.000,-

Price € 279.000,-
Plus d'information
1-7980e48d732b6fc85c14b43b94d2aa54.jpg

Te koop Herenhuis Costa Del Sol San Martín De Tesorillo € 320.000,-

Price € 320.000,-
Plus d'information
1-7980e48d732b6fc85c14b43b94d2aa54.jpg

Te koop Herenhuis Costa Del Sol Mijas € 340.000,-

Price € 340.000,-
Plus d'information
Disclaimer | Links
Casadelmar %lng_cookie_notice% %lng_close%
x