Hacienda Las Chapas

Te koop Residential Plot Costa Del Sol Hacienda Las Chapas € 3.600.000,-

Ref.no: RSOR5247910
Price: € 3.600.000,-

1-7980e48d732b6fc85c14b43b94d2aa54.jpg

Te koop Residential Plot Costa Del Sol Hacienda Las Chapas € 3.600.000,-

Poolno
Gardenyes
Parkingno
Ref.no: RSOR5247910
Price: € 3.600.000,-

Plus d'information ›››
Te koop Residential Plot Costa Del Sol Hacienda Las Chapas € 3.600.000,-

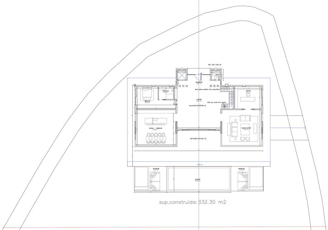
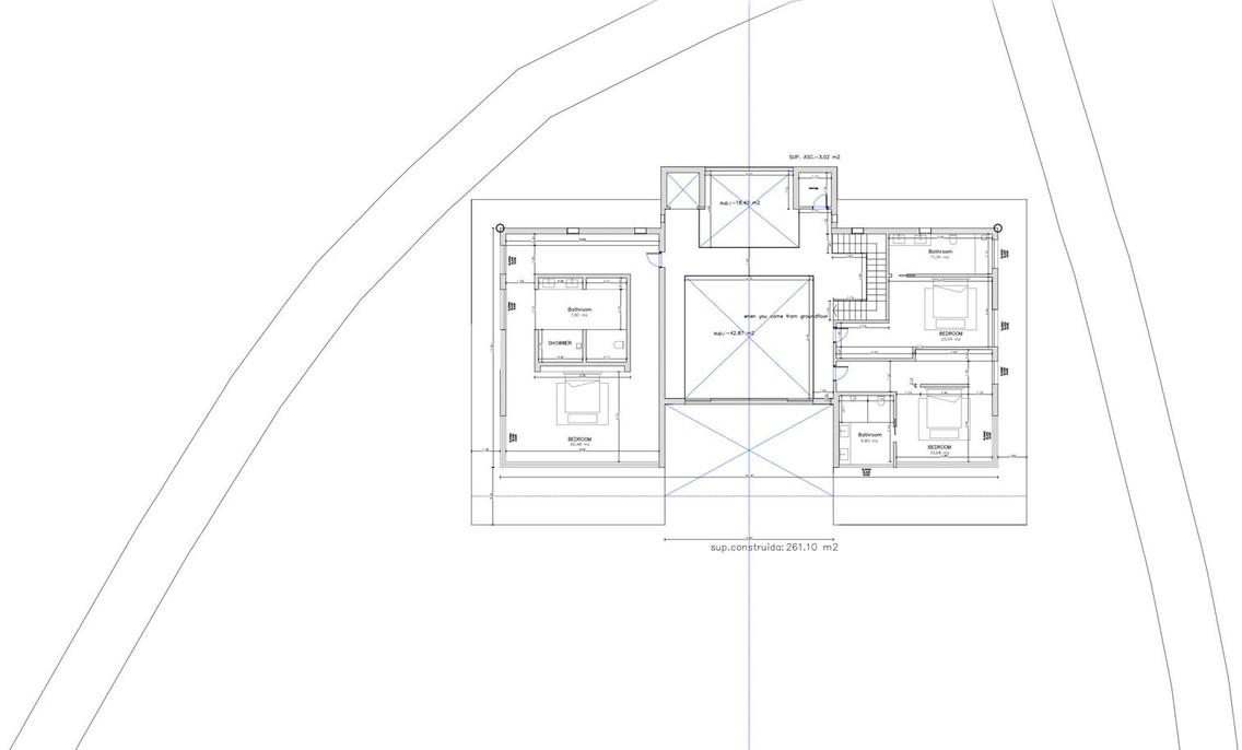
Dans le quartier exclusif de Las Chapas, une opportunité unique se présente : un terrain de plus de 4 500 m² avec un projet déjà réalisé.

Le projet prévoit une maison d'environ 800 m² répartie sur trois niveaux, comprenant un élégant sous-sol avec un garage spacieux. Chaque espace a été conçu avec des matériaux de qualité supérieure et un style architectural contemporain qui marie harmonieusement lumière, design et nature.

La demande de permis de construire a déjà été soumise et devrait être approuvée d'ici quelques mois.

Il est possible d'acheter la villa sur plan, ce qui permet de personnaliser les finitions (prix sur demande), ou d'acheter uniquement le terrain avec le projet finalisé déjà soumis – une option idéale pour ceux qui cherchent à investir ou à développer leur propre concept dans un cadre architectural approuvé.

Une propriété exclusive dans l'un des quartiers les plus prisés de Marbella.

Alternatives

1-7980e48d732b6fc85c14b43b94d2aa54.jpg

Te koop Residential Plot Costa Del Sol New Golden Mile € 3.500.000,-

Price € 3.500.000,-
Plus d'information
1-7980e48d732b6fc85c14b43b94d2aa54.jpg

Te koop Residential Plot Costa Del Sol La Cala De Mijas € 3.500.000,-

Price € 3.500.000,-
Plus d'information
1-7980e48d732b6fc85c14b43b94d2aa54.jpg

Te koop Residential Plot Costa Del Sol Sotogrande € 3.500.000,-

Price € 3.500.000,-
Plus d'information
1-7980e48d732b6fc85c14b43b94d2aa54.jpg

Te koop Residential Plot Costa Del Sol Elviria € 3.600.000,-

Price € 3.600.000,-
Plus d'information
Disclaimer | Links
Casadelmar %lng_cookie_notice% %lng_close%
x