Te koop Middle Floor Apartment Costa Del Sol Nueva Andalucía € 589.000,-
Ref.no: RSOR5182249
Price: € 589.000,-

Te koop Middle Floor Apartment Costa Del Sol Nueva Andalucía € 589.000,-
Bedrooms | 2 |
Salles de bains | 3 |
Superficie du terrain | 100m² |
Living area | m² |
Pool | yes |
Garden | yes |
Parking | no |
Cooling | %lng_% |
Storage | %lng_% |
Elevator | %lng_% |
Built year | 0 |
Floor | |
Réglage : Proche du golf, Proche du port, Proche des magasins, Proche de la mer, Proche de la ville, Proche des écoles | |
Orientatie: Zuid-West | |
Staat: uitstekend, recent gerenoveerd | |
Zwembad: gemeenschappelijk | |
Klimaatregeling: airconditioning, centrale verwarming | |
Uitzicht: tuin, zwembad | |
Functies: Overdekt terras, inbouwkasten, nabij vervoer, privéterras, berging | |
Meubels: volledig gemeubileerd | |
Keuken: Gedeeltelijk ingericht, keuken-woonkamer | |
Tuin: Gemeenschappelijk | |
Beveiliging: beveiligd complex, elektrische zonwering, 24-uurs beveiliging | |
Parkeren: privé | |
Categorie: Luxe |
Price: € 589.000,-
Plus d'information ›››
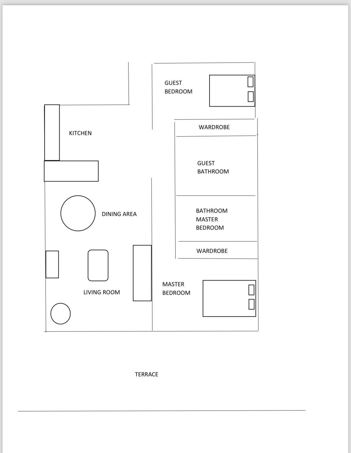
Bienvenue dans votre appartement récemment rénové au sein du prestigieux complexe Aloha Royal, situé au cœur de la Vallée du Golf de Marbella. Ce superbe appartement de deux chambres a été entièrement rénové avec un design contemporain et des finitions haut de gamme, alliant parfaitement confort et style.
Orientation Sud-Ouest
Profitez du soleil tout au long de l'après-midi et de couchers de soleil à couper le souffle depuis votre spacieuse terrasse privée, idéale pour dîner, se détendre ou se divertir.
Intérieur
L'appartement dispose de deux chambres lumineuses et confortables, d'une salle de bains moderne et d'un séjour ouvert donnant directement sur la terrasse. Chaque détail a été soigneusement pensé pour créer une atmosphère chaleureuse et accueillante.
Fonctionnalités communautaires
Aloha Royal propose des installations exceptionnelles avec trois piscines communes, de magnifiques jardins paysagers et un environnement paisible, parfait pour les familles et les séjours de vacances.
Suppléments
La propriété comprend une place de parking privée et un débarras pour votre confort.
Emplacement
Situé dans le quartier recherché de Nueva Andalucía, vous êtes à quelques minutes de Puerto Banús, des plages de Marbella et d'un large choix de restaurants, de boutiques et de terrains de golf.
Alternatives

Te koop Middle Floor Apartment Costa Del Sol Torremolinos € 595.000,-
