El Paraiso

Te koop Herenhuis Costa Del Sol El Paraiso € 649.000,-

Ref.no: RSOR5157049
Price: € 649.000,-

1-7980e48d732b6fc85c14b43b94d2aa54.jpg

Te koop Herenhuis Costa Del Sol El Paraiso € 649.000,-

Bedrooms4
Salles de bains3
Superficie du terrain192m²
Poolyes
Gardenyes
Parkingyes
Built year2005
Setting: Suburban, Commercial Area, Village, Close To Golf, Close To Shops, Close To Sea, Close To Town, Close To Schools, Urbanisation
Orientation: South East, South
Condition: Excellent, Good, Recently Renovated, Recently Refurbished
Pool: Communal, Children`s Pool
Climate Control: Air Conditioning, Hot A/C, Cold A/C, Fireplace
Views: Sea, Mountain, Garden, Urban
Features: Fitted Wardrobes, Near Transport, Private Terrace, Solarium, WiFi, Tennis Court, Ensuite Bathroom, Marble Flooring, Double Glazing, Fiber Optic
Kitchen: Fully Fitted
Garden: Communal, Private, Landscaped, Easy Maintenance
Security: Gated Complex
Parking: Underground
Category: Bargain, Holiday Homes, Investment, Luxury, Resale, Contemporary
Ref.no: RSOR5157049
Price: € 649.000,-

Plus d'information ›››
Te koop Herenhuis Costa Del Sol El Paraiso € 649.000,-

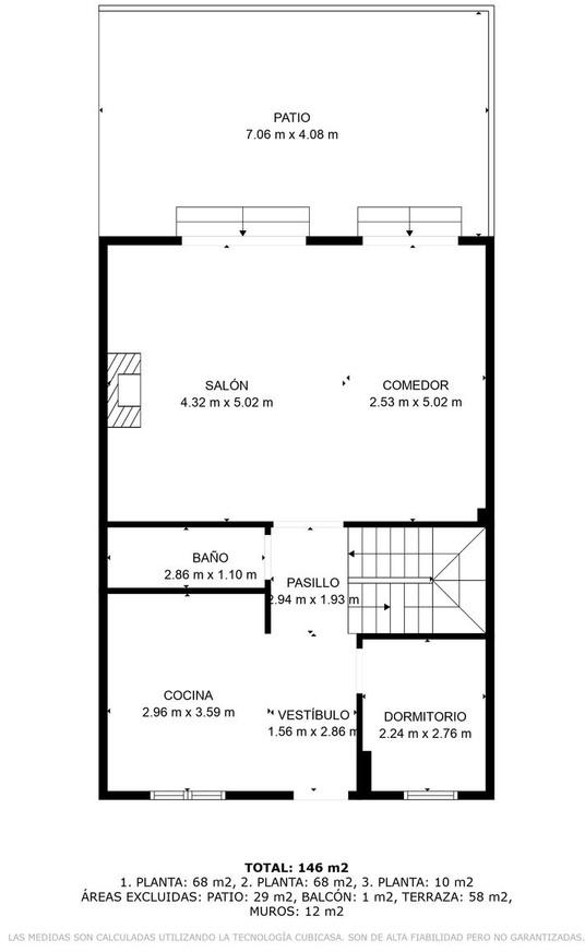
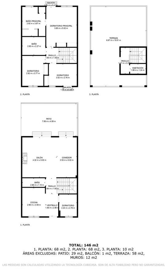
Situated in the sought-after community of Montevideo Hills in El Paraiso, this spacious renovated 4-bedroom townhouse combines modern comfort with Mediterranean charm. Set within a private, gated development, the property offers a perfect blend of family living and relaxed coastal lifestyle.

The townhouse is thoughtfully designed across multiple levels. On the ground floor, you’ll find a generously sized bedroom ideal for guests or a home office, along with bright and airy, open plan kitchen, living and dinning room area, that open onto a private terrace, as well as a downstairs shower room. Upstairs, the master suite features its own en-suite bathroom, while two additional bedrooms share a stylishly appointed family bathroom. All bedrooms feature built in wardrobes.

A highlight of the property is the large roof terrace, boasting panoramic views of the surrounding hills and the Mediterranean Sea – the perfect setting for entertaining or enjoying sunset evenings. There is pre installation for a hot tub as well as a fantastic outdoor kitchen area

Residents of Montevideo Hills enjoy exclusive access to two large swimming pools, beautifully maintained communal gardens, and tennis courts, offering a true resort-style living experience.

Additional features include secure underground parking with space for two cars and ample storage, which you can access directly from the house.

The location is unbeatable: you can walk to local shops, cafes, and amenities, while the beaches of the Costa del Sol are just a short drive away. San Pedro is only 7 minutes by car, and Marbella and Estepona are both just 15 minutes, making this an ideal base for enjoying everything the coast has to offer.

Alternatives

1-7980e48d732b6fc85c14b43b94d2aa54.jpg

Te koop Herenhuis Costa Del Sol New Golden Mile € 635.000,-

Price € 635.000,-
Plus d'information
1-7980e48d732b6fc85c14b43b94d2aa54.jpg

Te koop Herenhuis Costa Del Sol Elviria € 725.000,-

Price € 725.000,-
Plus d'information
1-7980e48d732b6fc85c14b43b94d2aa54.jpg

Te koop Herenhuis Costa Del Sol The Golden Mile € 680.000,-

Price € 680.000,-
Plus d'information
1-7980e48d732b6fc85c14b43b94d2aa54.jpg

Te koop Herenhuis Costa Del Sol Torrox Costa € 629.000,-

Price € 629.000,-
Plus d'information
Disclaimer | Links
Casadelmar %lng_cookie_notice% %lng_close%
x